套四好楼层精装修拎包入住

  • 图片(10)
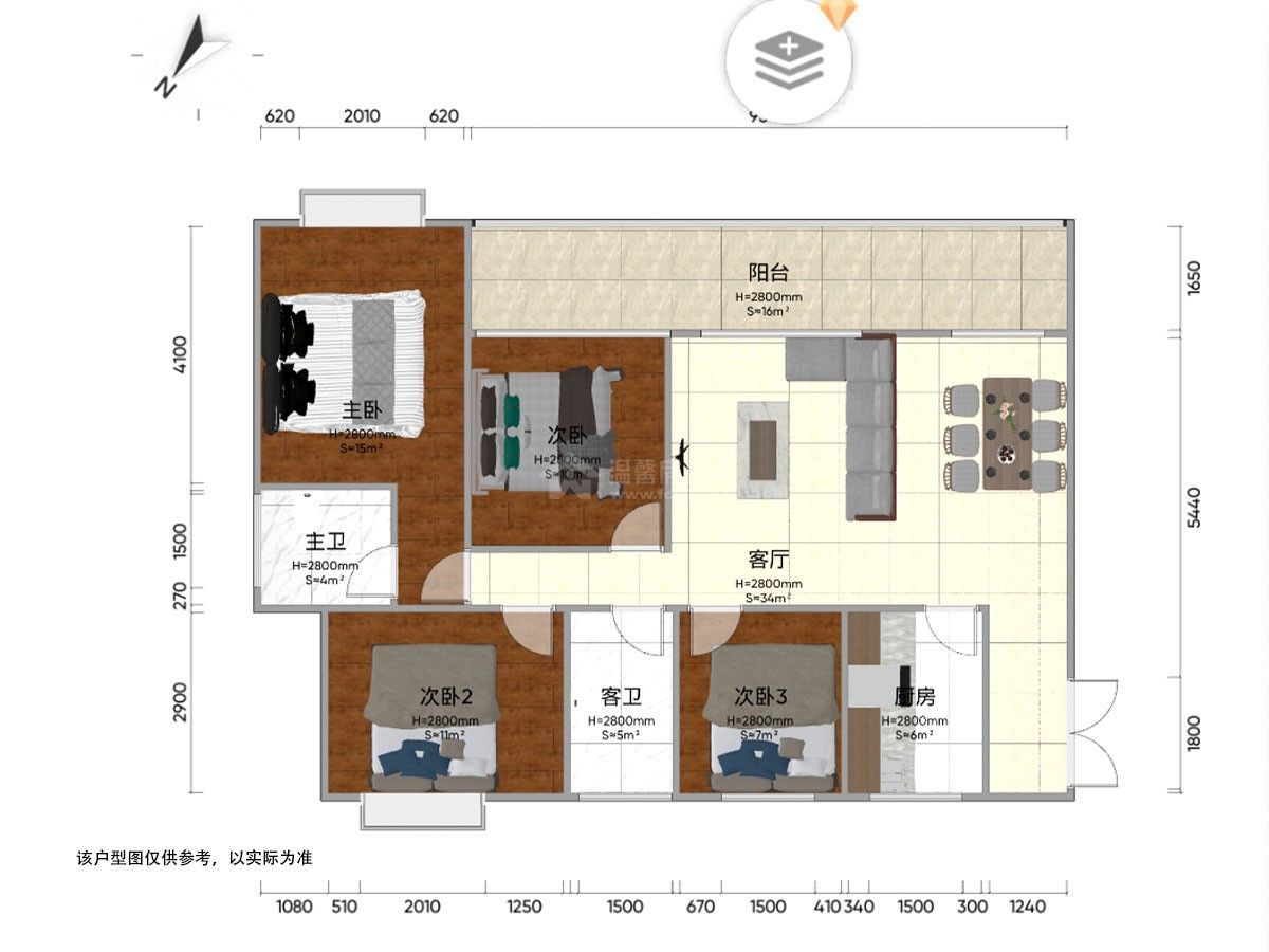
  • 户型图(1)
分享房源
82.8
6320.61 元/m²
4室2厅
中层 /共29层
精装
131m²
年代不明/ 住宅
所在区域 简阳城区   天星公园
所属学区 石桥小学
房源编号 M-25968
看房时间 咨询经纪人
13558802503
电梯

基本信息

基本属性
  • 房屋户型 4室2厅 1厨 2卫 1阳台
  • 所在楼层 中层 /共29层
  • 建筑面积 131m²
  • 房屋税收 个税
  • 使用面积 0m²
  • 建筑类型 高层
  • 附属面积 0m²
  • 房屋布局 暂无数据
  • 房屋朝向
  • 建筑结构 暂无数据
  • 装修情况 精装
  • 梯户比例 2梯5户
  • 所属学区 石桥小学
  • 出让年限 暂无数据
  • 交易权属 暂无数据
  • 房屋用途 住宅
  • 房屋标签 电梯
  • 房屋特色 该房位于天星公园旁 小区环境非常好 空气清新 大中庭 音乐广场 居住起来身心愉悦
    温馨房地产专注简阳房产30年——用心打造放心中介品牌!
  • 房屋配套 床;衣柜;餐桌;沙发;书桌;橱柜;电视;空调;冰箱;洗衣机;油烟机;灶具;热水器;有线;宽带;WIFI;

房源照片

户型图
看房记录
带看时间
带看经纪人
咨询电话
2024-03-04
15775160057
2024-03-04
15775160057
2024-03-04
15775160057
近7天带看次数
0
- 总带看 3 次 -

天慧城一二期地址

为你推荐新房 查看更多