河东新区云樾铭邸套三双卫

  • 图片(9)
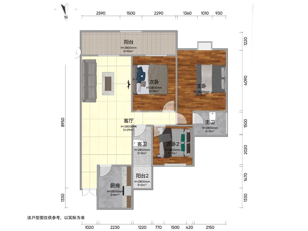
  • 户型图(1)
分享房源
87
7565.22 元/m²
3室2厅
低层 /共33层
毛坯
115m²
2020年建/ 住宅
小区名称 云樾名邸
所在区域 简阳城区   河东新区
所属学区 射洪坝筒车小学
房源编号 M-38118
看房时间 随时看房
15108150177
电梯
随时看房

基本信息

基本属性
  • 房屋户型 3室2厅 1厨 2卫 2阳台
  • 所在楼层 低层 /共33层
  • 建筑面积 115m²
  • 房屋税收 增值税
  • 使用面积 0m²
  • 建筑类型 高层
  • 附属面积 0m²
  • 房屋布局 平层
  • 房屋朝向
  • 建筑结构 钢混结构
  • 装修情况 毛坯
  • 梯户比例 2梯4户
  • 所属学区 射洪坝筒车小学
  • 出让年限 7年
  • 交易权属 私产
  • 房屋用途 住宅
  • 房屋标签 电梯
  • 房屋特色 此房位于河东新区中心位置,此小区高品质改善住宅小区,小区有建身房,儿童玩耍区,私宴厅。此户型套三双卫,户型方正,楼层好,视野好。
    温馨房地产专注简阳房产30年——用心打造放心中介品牌!
  • 房屋配套 有线;宽带;WIFI;

房源照片

户型图
看房记录
带看时间
带看经纪人
咨询电话
近7天带看次数
0
- 总带看 0 次 -

云樾名邸地址

为你推荐新房 查看更多