电梯精装修套二

  • 图片(8)
  • 户型图(1)
分享房源
45.8
5725 元/m²
2室2厅
低层 /共32层
精装
80m²
2017年建/ 住宅
小区名称 花半里
所在区域 简阳城区   城南片区
所属学区 简城城南学校
房源编号 M-38283
看房时间 咨询经纪人
18228252775
满5年
电梯

基本信息

基本属性
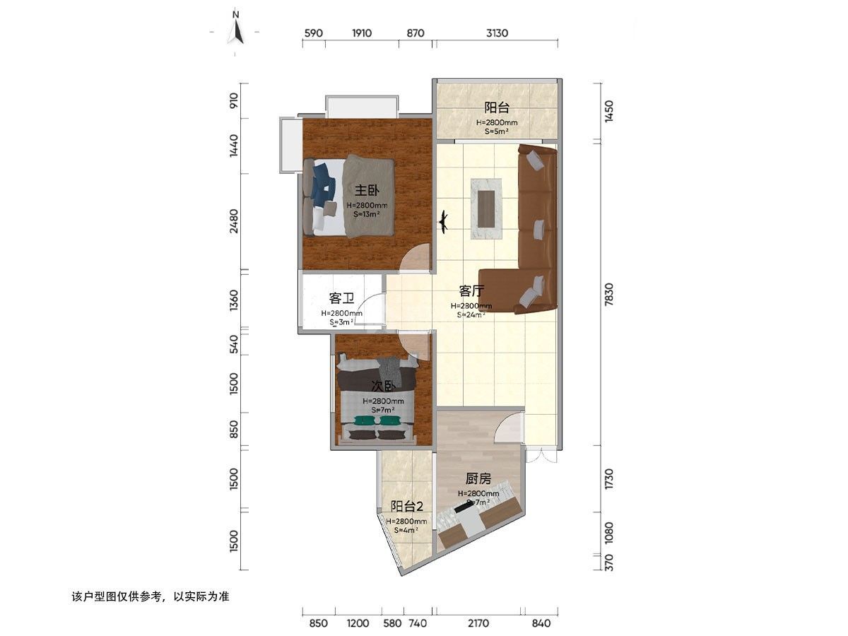
  • 房屋户型 2室2厅 1厨 1卫 1阳台
  • 所在楼层 低层 /共32层
  • 建筑面积 80m²
  • 房屋税收 暂无数据
  • 使用面积 0m²
  • 建筑类型 高层
  • 附属面积 0m² (无)
  • 房屋布局 平层
  • 房屋朝向
  • 建筑结构 钢混结构
  • 装修情况 精装
  • 梯户比例 3梯8户
  • 所属学区 简城城南学校
  • 出让年限 70年
  • 交易权属 私产
  • 房屋用途 住宅
  • 房屋标签 电梯
  • 房屋特色 城南电梯精装修套二,住家装修,好楼层,小区环境好,有地下停车场,产权满两年税低
    温馨房地产专注简阳房产30年——用心打造放心中介品牌!
  • 房屋配套 床;衣柜;餐桌;沙发;书桌;橱柜;电视;空调;冰箱;洗衣机;油烟机;灶具;热水器;有线;宽带;WIFI;

房源照片

户型图
看房记录
带看时间
带看经纪人
咨询电话
近7天带看次数
0
- 总带看 0 次 -

花半里地址

为你推荐新房 查看更多