城北新城 次新小区 套三

  • 图片(8)
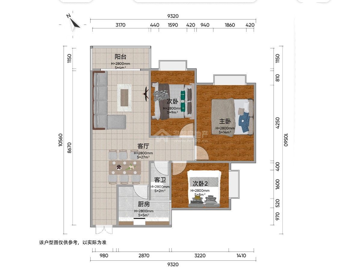
  • 户型图(1)
分享房源
61.8
7186.05 元/m²
3室2厅
高层 /共28层
精装
86m²
2021年建/ 住宅
所在区域 简阳城区   天星公园
所属学区 石桥小学
房源编号 M-40286
看房时间 随时看房
18280022035
满两年
电梯
随时看房

基本信息

基本属性
  • 房屋户型 3室2厅 1厨 1卫
  • 所在楼层 高层 /共28层
  • 建筑面积 86m²
  • 房屋税收 个税
  • 使用面积 0m²
  • 建筑类型 高层
  • 附属面积 0m²
  • 房屋布局 平层
  • 房屋朝向
  • 建筑结构 砖混结构
  • 装修情况 精装
  • 梯户比例 2梯5户
  • 所属学区 石桥小学
  • 出让年限 暂无数据
  • 交易权属 私产
  • 房屋用途 住宅
  • 房屋标签 电梯
  • 房屋特色 房子是城北新城 19年左右的次新小区小套三,电梯中间楼层,小区环境好,适合手上钱不多的小年轻
    温馨房地产专注简阳房产30年——用心打造放心中介品牌!
  • 房屋配套 油烟机;灶具;

房源照片

户型图
看房记录
带看时间
带看经纪人
咨询电话
近7天带看次数
0
- 总带看 0 次 -

天慧城一二期地址

为你推荐新房 查看更多